Sale Agreed €575,000 - house
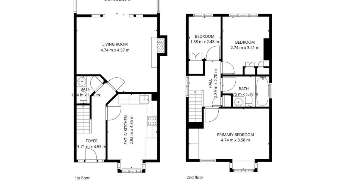
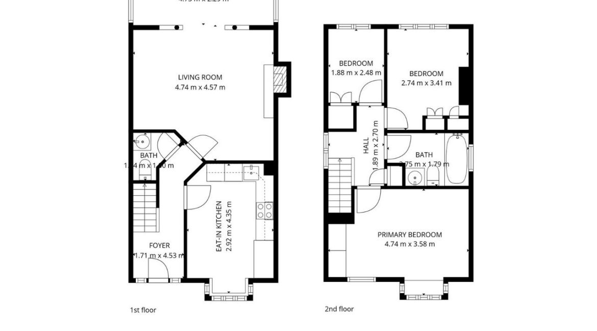
Olivers Estate Agents are delighted to present to the market No. 13 Church Park Drive, a superb three-bedroom semi detached home extending to approximately 81sq .m ( 872sq .ft). Church Park Drive is a mature development ideally positioned in the ever-popular Harolds Cross, one of Dublins most sought-after neighbourhoods. The accommodation comprises a welcoming entrance hall with understair’s storage and guest w.c., a bright kitchen/breakfast room, and a spacious open-plan living and conservatory-style dining area. Floor-to-ceiling picture windows and patio doors provide direct access to the rear garden. Upstairs, there are two generous double bedrooms and one single bedroom, and a family bathroom. Externally, the property offers off-street parking for one car to the front, with on-street parking also available. To the rear is a private paved patio and cobblestoned garden ideal for outdoor entertaining Perfectly positioned, this property is just minutes from all that Harolds Cross has to offer, including trendy cafs, artisan bakeries, restaurants, local parks, and excellent transport links, as well as the neighbouring areas of Portobello, Terenure, Kimmage and Rathmines. The area boasts an excellent choice of primary and secondary schools and within walking distance of numerous colleges and further education facilities. Public transport is exceptional, with multiple bus routes including the 16, 16D, 49, and F routes providing swift access to Dublin city centre, Dublin Airport and surrounding suburbs. The nearby M50 also offers convenient access to the wider Dublin region. Whether youre a first-time buyer, a growing family, investor, this well-connected location will certainly appeal to you Viewing is highly recommended.
Features
- 0: Excellant location
- 1: Approx. 81 Sq m
- 2: BER D1
- 3: Off street parking
- 4: Excellant transport links
- 5: GFCH






























































































